In response to the traffic chaos generated by a heterogeneous mix of vehicles at intersections, Jabalpur Smart City Ltd. (JSCL) had undertook the critical redesign of three key interchanges: Teenpati, Ranitaal, and Choti Line Phatak. The initiative centers on applying geometric improvements to enhance road safety, create safer pedestrian crossings, and establish better visual connections, thereby ensuring seamless and predictable traffic movement.
The Tripuri Memorial Park was revitalized into a cultural destination complete with a multipurpose ground, an interpretation centre, and new memorials. This involved integrating an existing memorial with a new park that included an entry plaza, an open-air theatre, and greenbelt plantations.
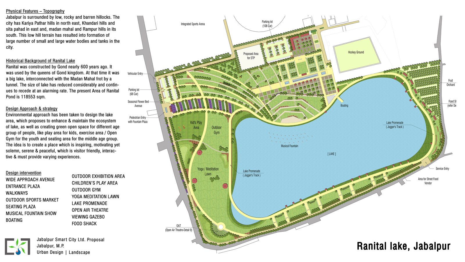
Similarly, the Ranital Lakefront, a former royal reservoir, was developed into a vibrant recreational hub, featuring a lake promenade, areas for yoga and meditation, sports grounds, a musicl fountain, and an amphitheatre.